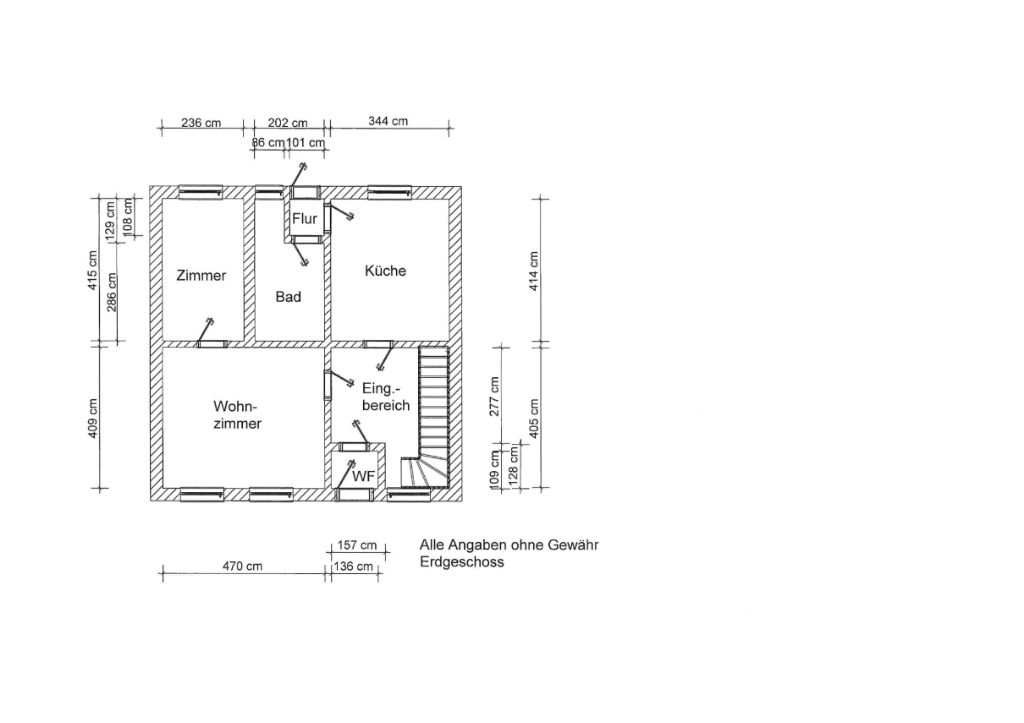
Im beschaulichen Ort Gülzow, nur 7 km von der Stadt Güstrow entfernt, wartet dieses Reihenhaus auf seine Verwandlung. Es bietet ein hervorragendes Potenzial für handwerklich versierte Käufer, die sich und ihrer Familie ein individuelles Zuhause schaffen möchten. Gülzow ist ein aktives Dorf mit einer Vielzahl an Freizeitmöglichkeiten und infrastrukturellen Angeboten, darunter ein Kindergarten, ein Sportverein sowie eine Autowerkstatt. Darüber hinaus haben sich zahlreiche Forschungseinrichtungen und Institute im Ort angesiedelt, die eine gute Anbindung an anspruchsvolle Arbeitsplätze garantieren. Gülzow bietet nicht nur eine ruhige und naturnahe Umgebung, sondern auch eine gute Anbindung an die umliegenden Großstädte Rostock und Schwerin. Über regelmäßige Busverbindungen sowie einen gut ausgebauten Radweg, der entlang des Güstrow-Bützow-Kanals führt, sind diese Städte in weniger als einer Stunde erreichbar. Das ca. 1900 erbaute Reihenhaus bietet eine Wohnfläche von ca. 100 m². Das Erdgeschoss umfasst einen Eingangsbereich, ein geräumiges Wohnzimmer, eine Küche sowie ein weiteres Zimmer, das sowohl als Büro als auch als Gästezimmer genutzt werden kann. Das Bad im Erdgeschoss ist mit einer Badewanne ausgestattet. Im Obergeschoss befinden sich zwei Schlafzimmer sowie ein kleiner Abstellraum, der zusätzlichen Stauraum bietet. Die Fenster, das Dach und die Elektroinstallation des Hauses stammen aus älteren Bauzeiten und benötigen eine Erneuerung. Die Heizung wurde 2018 durch einen neuen Festbrennstoffkessel ersetzt, die Heizungsrohre wurden ca. 1985 erneuert. Das Grundstück umfasst etwa 705 m² und bietet neben einem kleinen Teich und einem Pavillon, der als gemütliche Sitzecke dient, ausreichend Raum für Entspannung und Freizeit. Ein großer Schuppen mit Werkstatt- und Abstellmöglichkeiten ergänzt das Angebot und bietet viel Platz für handwerkliche Tätigkeiten sowie zur Lagerung. Dieses Reihenhaus in Gülzow ist die perfekte Gelegenheit für Käufer, die bereit sind, das Potenzial dieses Hauses zu nutzen und es in ein Schmuckstück zu verwandeln.