Dieses gepflegte Einfamilienhaus befindet sich in einer ruhigen, grünen Lage bei Mühl Rosin, in einem Bereich, der in der Umgebung als „Schabernack“ bekannt ist. Das Haus wurde 1972 in solider Bauweise errichtet und 1998 um ein vollständiges Obergeschoss erweitert. Das Grundstück umfasst ca. 749 m², zusätzlich kann ein angrenzendes Pachtgrundstück von etwa 250 m² übernommen werden – ideal für alle, die sich mehr Gartenfläche wünschen oder zusätzlichen Platz für Freizeit und Hobby benötigen.
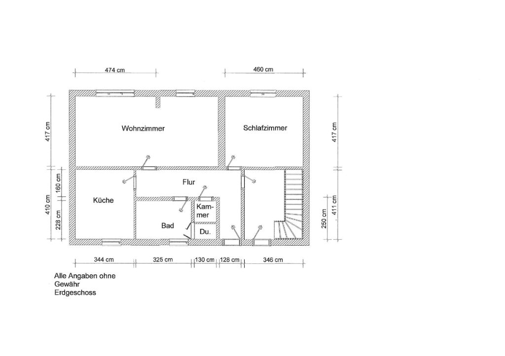
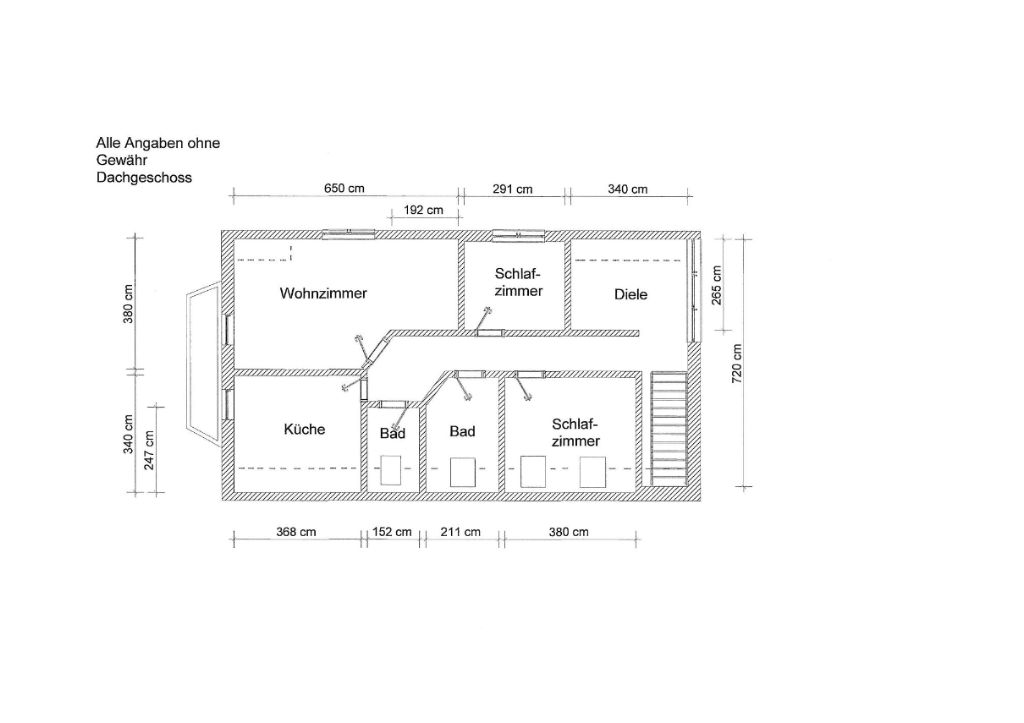
Mit einer Wohnfläche von insgesamt rund 180 m² bietet die Immobilie großzügigen Raum für individuelles Wohnen. Zeitweise als Zweifamilienhaus genutzt, überzeugt das Haus durch seine flexible Anpassungsfähigkeit an verschiedene Lebenssituationen. Im Erdgeschoss befindet sich ein großer, offener Wohn- und Essbereich, eine Küche, ein Badezimmer mit Dusche und Wanne sowie ein kleiner Abstellraum. Das Obergeschoss umfasst einen gemütlichen Wohnbereich, zwei Schlafzimmer, eine zweite Küche sowie zwei weitere Bäder. Durch eine Umgestaltung der Küche im Obergeschoss ließe sich hier problemlos ein zusätzliches Zimmer schaffen. Vom Wohnbereich und der Küche aus gelangt man auf den Balkon, der einen schönen Blick ins Grüne bietet.
Der Dachboden bietet zusätzlichen Stauraum, und der Vollkeller überzeugt mit einer praktischen Waschküche, einem weiteren Badezimmer mit Dusche sowie mehreren Kellerräumen. Zwei Garagen sowie ein großzügiger Schuppenkomplex im Außenbereich runden das Platzangebot ab.
Im Zuge der Aufstockung in den Jahren 1998/99 wurden verschiedene Sanierungsmaßnahmen umgesetzt, unter anderem an den Fenstern, der Haustür, der Elektro- und Sanitärinstallation sowie am Dach. Die Gastherme wurde im Jahr 2009 erneuert.
Diese Immobilie überzeugt durch ihre solide Bauweise, das großzügige Raumangebot und die ruhige, naturnahe Lage. Das als „Schabernack“ bekannte Wohngebiet bietet eine angenehme Nachbarschaft und ist nur wenige Minuten der Barlachstadt Güstrow entfernt – perfekt für alle, die ländliche Ruhe und Stadtnähe verbinden möchten.
Diese Immobilie wurde von uns erfolgreich vermarktet.