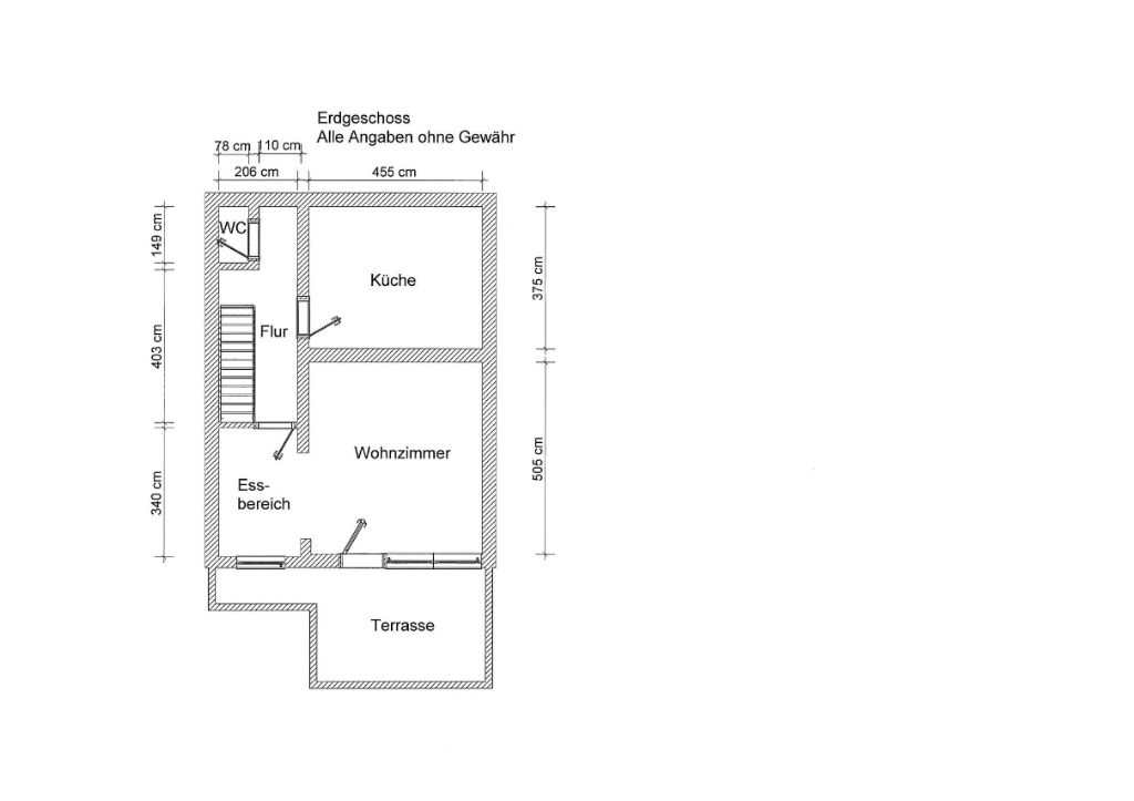
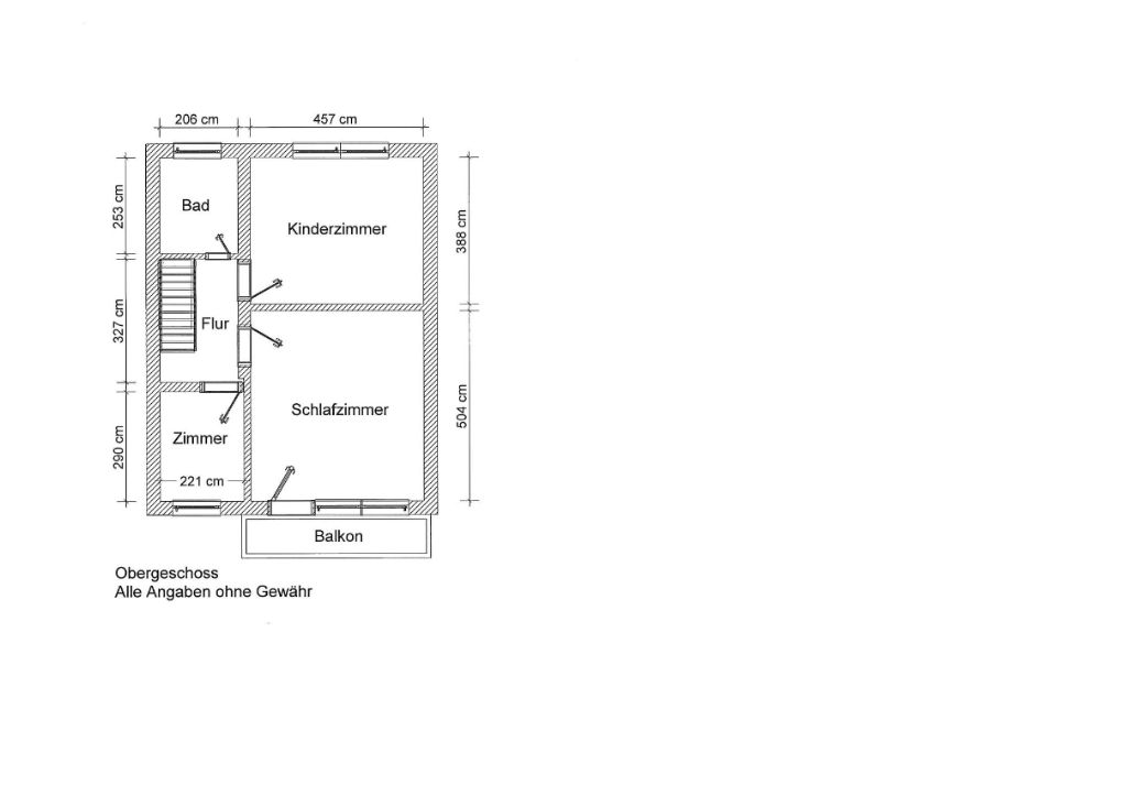
Dieses gepflegte Reihenhaus aus dem Jahr 1979 überzeugt mit einer Wohnfläche von rund 112 m² und vielfältigen Nutzungsmöglichkeiten für individuelles Wohnen. Es liegt in einer ruhigen Seitenstraße nahe dem Heideweg in Güstrow, einer charmanten Stadt im Herzen Mecklenburg-Vorpommerns. Mit etwa 30.000 Einwohnern verbindet Güstrow städtische Infrastruktur mit naturnaher Umgebung. Wiesen, Seen und Grünflächen prägen das Stadtbild und laden zu erholsamen Freizeitaktivitäten ein. Einkaufsmöglichkeiten, Schulen, Kindergärten sowie medizinische Versorgung sind in kurzer Entfernung vorhanden. Das Stadtzentrum mit Kino, Theater und kulturellen Veranstaltungen ist gut erreichbar, ebenso wie der öffentliche Nahverkehr. Die Städte Rostock und Schwerin lassen sich bequem mit Auto, Bus oder Bahn erreichen und sorgen für eine hervorragende überregionale Anbindung. Das Haus präsentiert sich in einem gepflegten Zustand und überzeugt durch seine angenehme Wohnatmosphäre. Im Erdgeschoss befindet sich ein großzügiger Wohnbereich mit direktem Zugang zur Terrasse und Blick in den Garten – ein idealer Ort zum Entspannen. Die Küche ist funktional geschnitten und bietet Platz für eine gemütliche Essecke. Ein Gäste-WC ergänzt diese Ebene sinnvoll. Im Obergeschoss stehen zwei geräumige Schlafzimmer zur Verfügung, von denen eines Zugang zum Balkon hat. Ein weiteres Zimmer eignet sich hervorragend als Arbeits- oder Gästezimmer. Das Badezimmer ist mit einer Badewanne ausgestattet und bietet ausreichend Platz für den täglichen Komfort. Das Kellergeschoss eröffnet zusätzliche Nutzungsoptionen. Neben einem großen Kellerraum, der auch als Gäste- oder Hobbybereich genutzt werden kann, befindet sich hier ein weiteres Badezimmer mit Dusche. Die Heizungsanlage wurde 2024 durch eine moderne Gasbrennwerttherme erneuert. Die Fenster stammen aus dem Jahr 1991, die Haustür wurde 2018 ausgetauscht. Zur Hofseite sind Rollläden vorhanden, die sowohl den Wohnkomfort als auch die Sicherheit erhöhen. Der etwa 295 m² große Garten ist pflegeleicht angelegt und lässt Raum für individuelle Gestaltungsideen. Eine Garage auf dem Grundstück bietet zusätzlichen Stauraum und einen geschützten Stellplatz für Ihr Fahrzeug.